TITAN Sports Center
Date: 2024 | Location: Bucuresti, Romania | Status: Ungoing
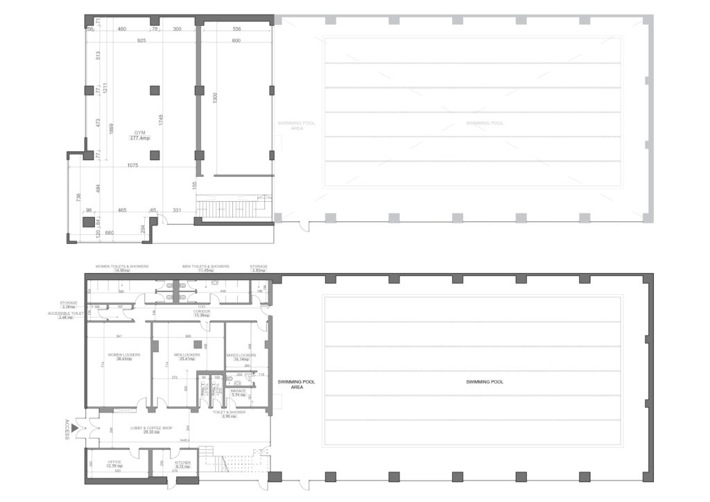
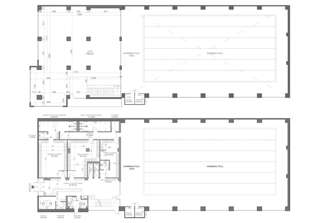
Unveiled in 2021, nestled on the fringes of Bucharest, the Titan Sports Center emerges as a beacon of athletic prowess, housing a semi-Olympic swimming sanctuary and a robust gymnasium. Now, three years post-inauguration, the proprietors seek to rejuvenate its interior layout and aesthetics.
In a bold structural move, the brick partition bisecting the gymnasium will be abolished, ushering in an expansive expanse conducive to the varied activities therein. The resulting openness promises a dynamic milieu tailored to the demands of its diverse clientele.
As for the thematic palette, neon luminescence assumes a paramount role, akin to a guiding spirit beckoning patrons from the reception, through the labyrinthine corridors, and into the upper echelons of the facility—culminating in the lofty realm of the first-floor gymnasium and the aqueous embrace of the swimming pool.
A vibrant interplay of contrasting hues, from luminous yellow to deep petrol-blue, invigorates the senses, instilling a palpable aura of vitality and focus. Complementing this vivacity, blackened metal finishes imbue an industrial chic, evoking a raw essence of power and resilience.
Descending into the aquatic realm, the conventional ceramic tile cladding of the walls gives way to more refined wood finish trespa, evoking a sense of tranquility and sophistication, further enhancing the overall ambiance of the space.