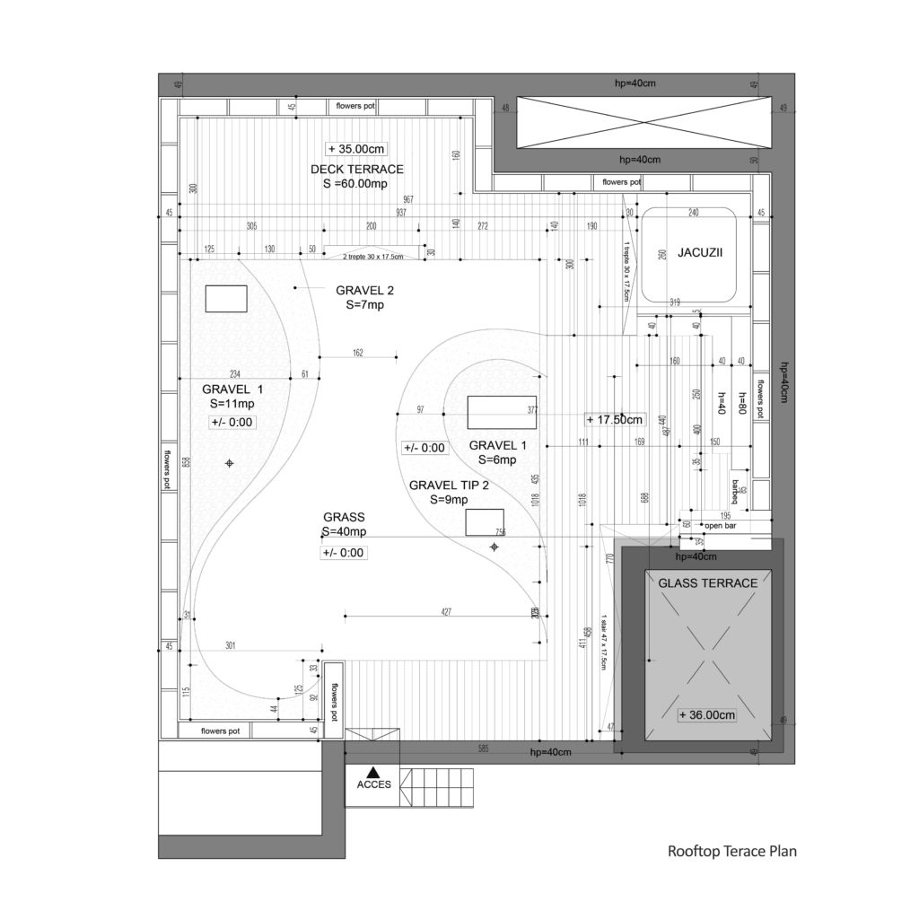
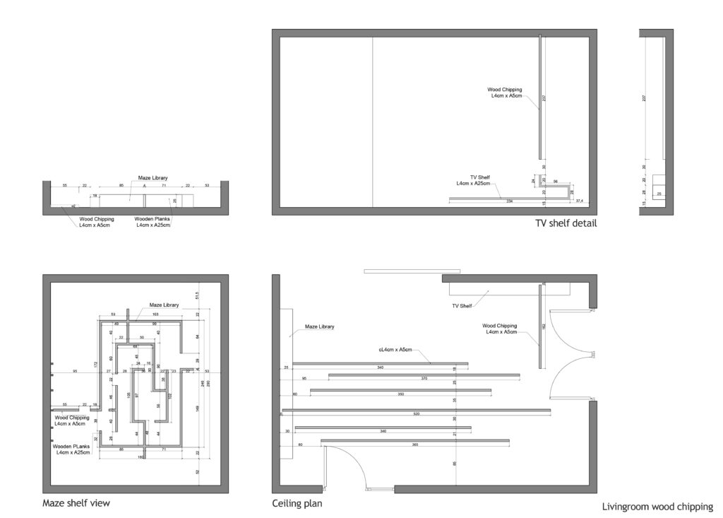
the MAZE
Date: 2023 | Location: Bucuresti, Romania | Status: Completed
Passing through the labyrinth of knowledge, you reach enlightenment. Created as both art and function, this interior embraces warmth, tranquility, and mindfulness.
Beginning from the floor up, light coffee-colored slabs greet visitors, extending warmth. Darker greys and coffee hues ascend to the ceiling, with natural materials like wood and warm lighting fixtures intertwining. Spatial continuity is emphasized with consistent colors and materials, like coffee marble spanning indoors to the terrace. Symbolism enriches the design, with wood denoting life stages. A spiral door symbolizes spiritual growth, while a singularity-themed bed headboard signifies beginnings and endings. A labyrinth of bookshelves in the living room signifies enlightenment through reading, complemented by music’s guiding spirit.