G+ Sports Center
Date: 2024 | Location: Bucuresti, Romania | Status: Concept
Romania boasts the lowest number of swimming pools compared to its European counterparts, a statistic slowly undergoing change. Some institutions initiated a request for an initial concept.
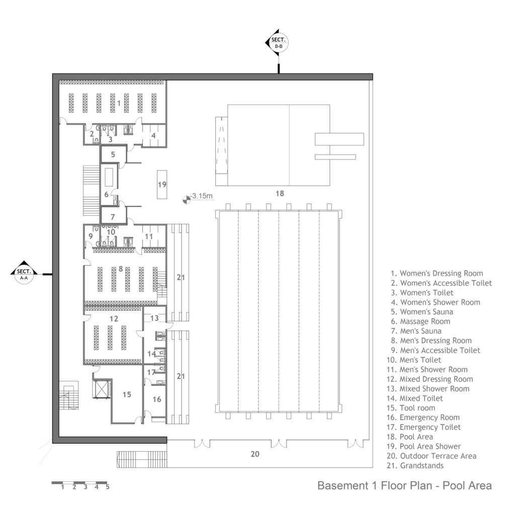
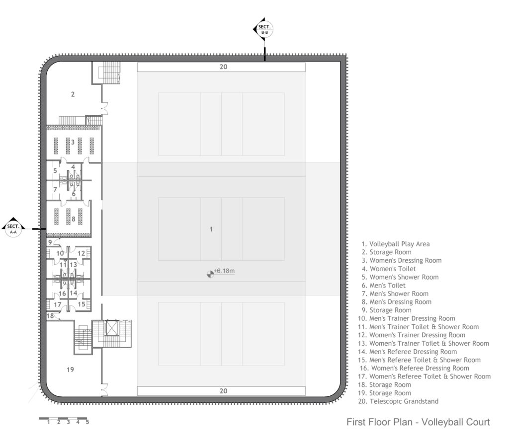
The proposed project site lies within an expanding yet somewhat marginal area of the city, a vacant lot ripe for transformation. Envisioned is a comprehensive sports complex featuring a semi-Olympic swimming pool, a versatile gymnasium with retractable bleachers, and a fitness suite. The structure spans multiple levels, with the ground floor hosting the primary entrance granting access to all amenities.
To optimize land utilization in adherence to local regulations, the swimming pool area is recessed into the ground, affording a striking glass façade. The first floor accommodates a volleyball court with associated facilities, while a gym area is nestled within a partial floor. The rooftop is envisioned as a lush elevated park complete with a running track and outdoor gym equipment, preserving greenery amidst urbanity.
Externally, the building is clad in sandwich walls accented with vertical metal flashing, imbuing it with an elegant aesthetic while maintaining cost efficiency. Remaining land is thoughtfully allocated, with a portion designated for parking and the remainder transformed into a park.