Patria Credit – Office Fittout
Date: 2021 | Location: Bucharest, Romania | Status: Completed
The bank management desired the transformation of the credit division offices into a modern, inviting space that reflects the company’s values and new image.
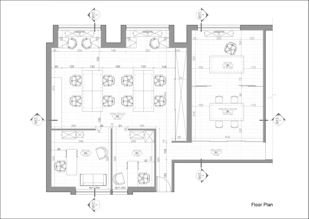
Our vision aimed to reimagine the workspace as a collaborative workshop environment.
We achieved this by removing the barriers between managers’ offices and the team area, fostering a more open, fluid, and relaxed atmosphere.
The office layout was redesigned to enhance functionality and openness, incorporating new meeting spaces. Recognizing the hybrid work model, we introduced foldable workspaces to optimize flexibility and relaxation areas.
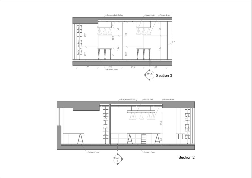
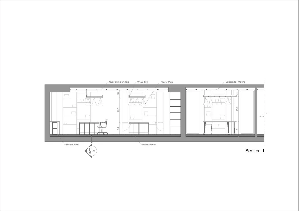
To maintain a sleek aesthetic, we concealed storage areas with MDF doors, evoking the elegance of a dressing room. Company-specific colors were integrated with natural materials like wood, featured in flooring and tabletops.
A highlight of the design included custom-made grids of wood and metal mesh, suspended from the ceiling with metal rods. These grids not only added a decorative touch but also supported hanging flower pots, enhancing the space with a touch of natural beauty.
All furniture was meticulously crafted on-site, combining wooden tops with diverse frames and metal accents sourced from IKEA.
We coordinated a weekend construction schedule to ensure minimal disruption and timely completion of the project.